Monteiro Lobato e o duplex

No começo deste ano um projeto nosso foi finalizado, o Residencial Monteiro Lobato. O Monteiro Lobato fica localizado na rua Heitor Campos, número 54, rua ao lado da Basílica da Nossa Senhora da Medianeira.  O Residencial é uma edificação com mais de 8.200 metros quadrados, 15 pavimentos acima do solo e 2 subsolos. No total são 38 apartamentos e 4 pavimentos para as garagens, ficando duas vagas (por vezes resolvidas em um box duplo) para cada apartamento.

Veja mais do Residencial Monteiro Lobato no nosso site

O desafio do Duplex.

A arquitetura é experimentação, e de alguma forma, com essa experimentação, vamos adquirindo conhecimento técnico e empírico de projeto, de gerência ou mesmo de contato e trato pessoal. Desde os primeiros estudos para o Residencial Monteiro Lobato já ensaiávamos, dentro do padrão de produto/projeto que estipulamos, uma porcentagem de apartamentos que tivesse uma abordagem diferente. A maior parte dos apartamentos recebeu uma abordagem mais “tradicional”, algo parecido com algo que já tínhamos feito, que os incorporadores já tivessem mais certeza da liquidez e aceitação.  Assim, partimos para um produto específico, vislumbramos um público e desenhamos unidades habitacionais para ele.

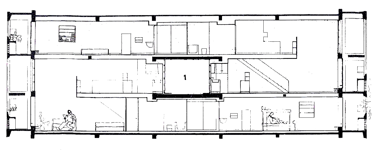
O conceito foi o de atender um público de alma jovem, família pequena, onde os usuários tem vida social ativa, utiliza a cozinha regularmente com amigos ou família, mas não abre mão da privacidade, para a área íntima. Pensamos em uma experiencia de viver em uma pequena casa, tendo setorização e iluminação natural abundante, mas com as conveniências de um edifício. Após muito estudo projetual, foram propostos apartamentos duplex ao longo de toda a torre de 15 pavimentos, o projeto foi resolvido em 3 dimensões, não somente em duas, como tradicionalmente se faz.

O Residencial Monteiro Lobato contempla dois pavimentos tipos, dois andares diferentes. Um pavimento tipo que dá acesso a 4 apartamentos, sendo dois duplex de aproximadamente 100 m² e dois não duplex de de aproximadamente 138 m². Já no segundo pavimento tipo, o apartamento de 138 m² se repete, porém com uma área de depósito, justamente onde seria o acesso do apartamento duplex, que neste pavimento não possui acesso. No interior do duplex se desenvolve a área íntima do apartamento, com dois dormitórios e um escritório.

Duplex

Os apartamentos duplex são conhecidos de toda cidade, são constituídos em dois pavimentos, porém geralmente ficam localizados no topo da edificação, são os apartamentos de cobertura. Esse conceito foi amplamente utilizado em Santa Maria e no Brasil como um todo, uma forma de utilizar o pavimento de cobertura, sem aumentar infraestrutura (escada e elevador).  Assim o termo cobertura e duplex estiveram seguidamente associados.

Já dentro da história de projetos de edificações multifamiliar em altura existem muitos projetos que solucionam seu programa através de apartamentos duplex, trabalhando uma solução diferente para resolver o projeto de habitação coletiva.   Um grande exemplo desse tipo de solução são as Unités d’Habitation de Le Courbusier, que a solução é tão bem aplicada que a circulação horizontal, em alguns pontos, só existe a cada 3 pavimentos.

Mas outro bons exemplos podem ser vistos ao longo de toda arquitetura moderna e contemporânea, mesmo aqui em Santa Maria temos alguns edifícios com esse conceito. Longe de nos comparar a Le Coubusier, mas utilizando de toda influência que recebemos dele e de outros mestres, utilizamos essa solução no Monteiro Lobato, onde se desenvolve apartamento duplex e não duplex.

O apartamento duplex perde um pouco em área (com a escada), mas ganha em conforto e setorização. Além de lidar com o lúdico, pois de certa forma a escada junto a sala está sempre relacionada a uma residência, criando uma barreira que configura um setor acessível e outro “íntimo”. Além disso, o apartamento contribui na composição volumétrica do edifício, criando diferentes níveis de sacadas e janelas. Na relação interna externa do duplex, propusemos sacadas amplas e, junto ao jantar, uma esquadria com peitoril baixo, que mais uma vez retira a ideia de confinamento que podemos ter em apartamentos com esquadrias de dimensões dentro do padrão.

Os problemas

Mas nem tudo são flores, tivemos alguns problemas técnicos, começando pela distribuição de tubulação e shafts de descida de esgoto, como a distribuição de pontos muda a cada dois pavimentos, um banheiro fica em cima de uma sala, e a tubulação precisou ser adaptada e desviada. Além disso, a entrada de mobiliário fica um pouco dificultada, já que existe somente acesso por escada para o segundo pavimento.

O último problema que tivemos foi com relação à sacada, que não existe no segundo pavimento do duplex, que é um dormitório. Com isso, o apartamento tem uma projeção menor no segundo pavimento, que permite do quarto se enxergar a sacada, uma relação que novamente tem ligação com a vida na casa, onde se pode ver o pátio a partir dos quartos. Mas como no nosso clima o frio e chuva são algo corriqueiro, a maioria dos moradores querem fechar a sacada com vidro. Foi necessário projetar um fechamento superior complementar, de estrutura metálica e vidro, que acabou limitando fornecedores e encarecendo a estrutura.

Sem soluções automáticas

De qualquer forma os problemas foram contornados e são pequenos perto do ganho arquitetônico, o apartamento é elogiado e foi bastante procurado. Estamos sempre buscando sempre a melhor solução, pensando na arquitetura, na moradia, no edifício e no incorporador, sem soluções automáticas.

 

Avatar de Desconhecido

Escrito por

Gaúcho, Santa Mariense, Arquiteto e Urbanista que um dia foi anarquista.

3 comentários em “Monteiro Lobato e o duplex

Deixe um comentário