Semana passada falamos aqui sobre apartamentos menores, custos da construção e como podemos diminuí-los. Bom, um pouco disso pode ser feito no papel ainda, otimizando o projeto de um edifício. Mas o que seria otimizar o custo do edifício? Bom, existem várias maneiras de otimizar um projeto, mas vou abordar alguns conceitos básicos e de forma simplificada, e que ajudam a indicar se o projeto de um edifício está otimizado. Aqui nesse texto vamos falar da compacidade da edificação.
Compacidade da edificação
A compacidade da edificação vem do índice de compacidade, que é a relação entre o perímetro de um elemento e o perímetro de uma circunferência de mesma área. Parece confuso, mas é basicamente uma relação entre área e perímetro. Quanto mais próxima do quadrado for a planta, o desenho, melhor será seu índice de compacidade.
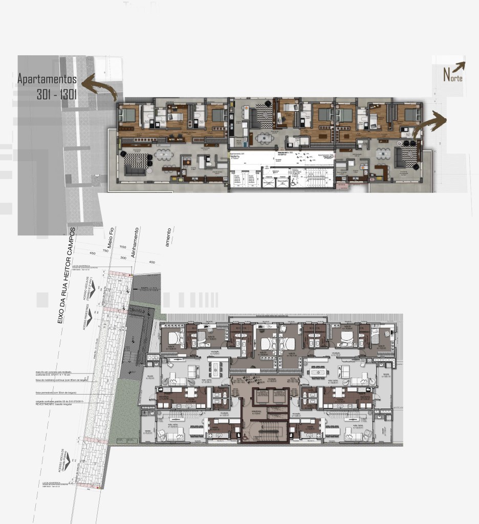
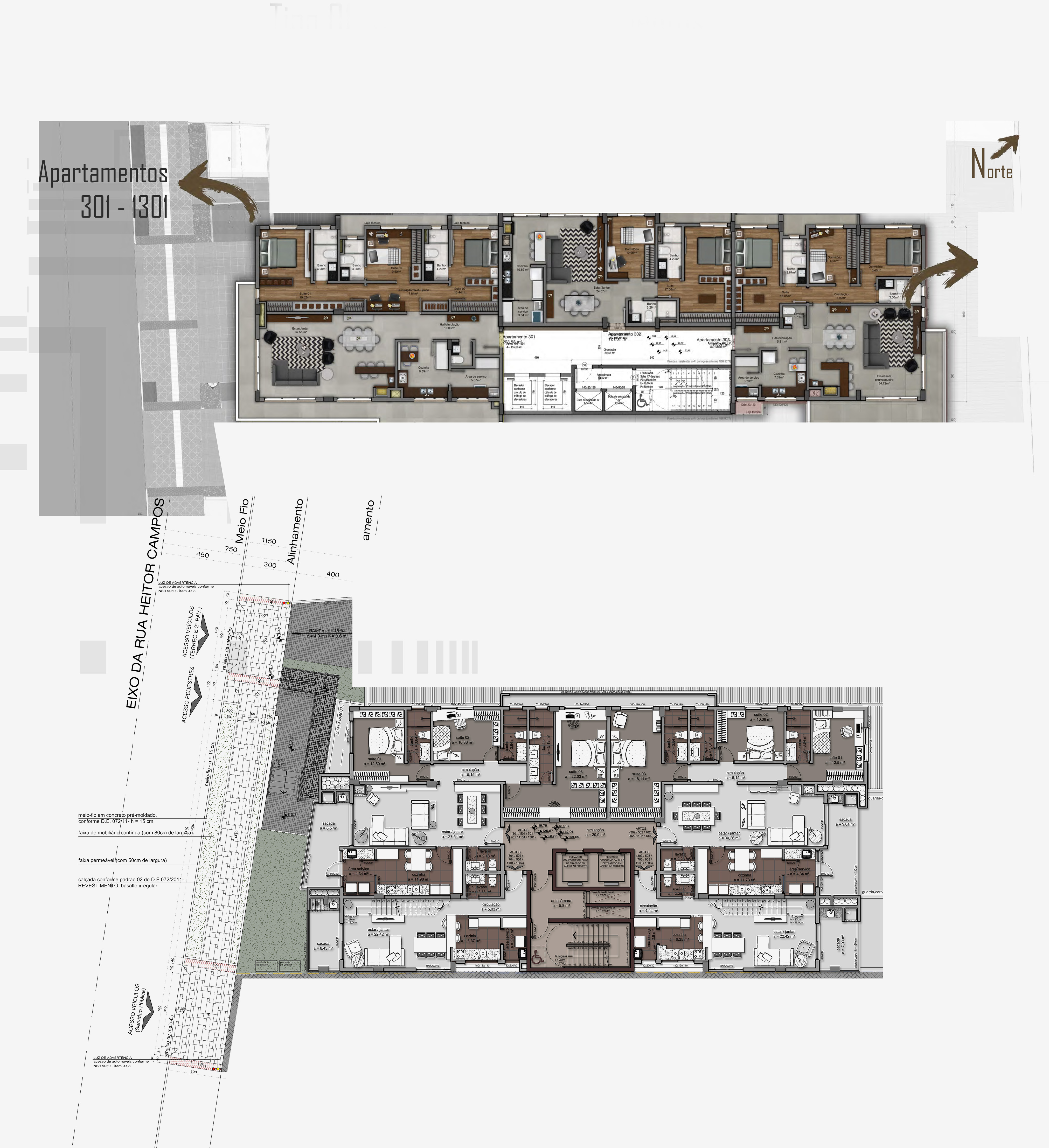
Note que apesar de áreas equivalentes, um determinado elemento pode possuir um perímetro maior que o outro. Esse conceito aplicado à construção civil diz um pouco sobre o gasto, tanto com fachada, quanto com relação a tubulação, fiação e outros elementos. Ou seja, quanto mais compacto o volume, mais eficiente nesse quesito ele é, e menos custo teremos. Tudo fica mais fácil se tivermos um exemplo prático. Para esse caso, vamos pegar o edifício Monteiro Lobato e o Edifício Cecília 210, ambos do nosso escritório, da LP Arquitetos. Os dois edifícios tem uma metragem parecida, uma quantidade de apartamentos parecida e as metragens dos aptos também são similares. Vamos à discriminação de cada um deles.
Residencial Monteiro Lobato
- 15 pavimentos + 2 subsolos
- 38 apartamentos
- Apartamentos de 3 dormitórios entre 135m² e 180m² privativos
- Apartamento de 2 dormitórios entre 98,00m² e 100m² privativos
- Área de Planta do Pavimento tipo – 430,00m²
- Dimensões da torre- 29,50m x 14,60m
- Perímetro – 88,20 m



Residencial Ccilia 210
- 16 pavimentos + 2 subsolos
- 39 apartamentos
- Apartamentos de 3 dormitórios entre 119m² e 177m² privativos;
- Apartamento de 2 dormitórios entre 80m² e 101m² privativos;
- Área de Planta do Pavimento tipo – 397,80m²
- Dimensões da torre- 10,20m x 39,00m
- Perímetro – 98,40 m



Veja bem, apesar da área de planta do pavimento tipo do Monteiro Lobato ser maior que a do Ccilia 210, ainda assim o Ccília 210 tem um perímetro ligeiramente maior. Ou seja, se considerarmos somente a fachada, já temos mais de 370,00 m² a mais de fachada considerando a torre de 13 pavimentos. Além disso, as tubulações, fiação, mangueiras e outros elementos também vão ser em maior quantidade.
Claro que isso não quer dizer sucesso garantido, afinal esse coeficiente é só um dos itens do custo do empreendimento, dentre tantos. Além disso, muitas vezes o custo pode virar investimento e o resultado financeiro final compensar um edifício mais alongado, com maiores fachadas e mais aberturas, por exemplo. Às vezes, ter uma compacidade muito alto em um apartamento de alto padrão, pode desvalorizar os apartamentos, pois significa menos fachada e, talvez, menos ventilação, vistas piores e um interior mais escuro. A obra fica um pouco mais econômica, mas pode ficar mais difícil de vender o empreendimento. É tudo uma questão de custo-benefício.


Um comentário em “Custos na construção – Compacidade da edificação”