Em julho tive a oportunidade de mais uma vez ir a São Paulo, e no roteiro desta viagem estavam duas casas icônicas da arquitetura paulista e brasileira. Uma delas era a “primeira casa modernista”, de Gregori Warchavchik, e a outra era a segunda casa do arquiteto, de Vilanova Artigas. As duas foram recentemente abertas a visitação e, coincidentemente, visitei elas no mesmo dia, o que me levou a fazer um comparativo.
As residências
A casa modernista hoje faz parte do Museu da Cidade de São Paulo, um projeto que busca, através de uma rede de casas históricas, mostrar e valorizar como era a ocupação urbana e rural da Cidade de São Paulo, sendo a Casa Modernista um dos seus 12 exemplares. A residência, projetada em 1927 e executada em 1928, é um marco na arquitetura nacional. Uma das grandes curiosidades do projeto é que ele chegou a ter um desenho com adornos, o qual foi apresentado na prefeitura para fins de aprovação de projeto (os adornos eram exigência legal da época). Estes, no entanto, nunca chegaram a ser executados, propositalmente. Ao ser questionado pela própria prefeitura, na época, Gregori informou que não tinha recursos para colocar os adornos. Veja mais sobre a casa aqui e aqui.

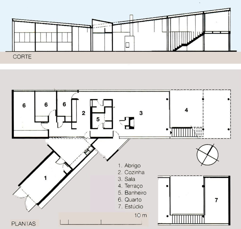
A segunda casa que visitamos era do Arquiteto Vilanova Artigas. Artigas é, talvez, a principal referência na arquitetura moderna paulista, foi professor da FAU-USP e possui uma grande produção de arquitetura. A casa que está aberta a visitação é a segunda residência do arquiteto, projetada em 1949, e que fica localizada no bairro Campo Belo, em São Paulo. A residência é pequena, implantada em um lote amplo, que abriga inclusive a primeira casa do arquiteto. A composição subtrativa se dá por um volume prismático único, marcado pelo telhado borboleta com platibanda em concreto e pela subtração de um volume, em uma das extremidades, no térreo, que dá lugar a um pátio coberto muito interessante e ao escritório, localizado em um volume descolado do chão e que acompanha a inclinação do telhado. Vale a pena conhecer e visualizar.

A experiência de visitação
As duas residências são muitos diferentes, principalmente com relação à escala e à inserção urbana. Talvez o meu choque se dê por eu nunca ter me aprofundado no estudos das mesmas, definindo-as somente como “casas modernas de arquitetos” e colocando elas nas mesma “ala”, sem perceber, através de uma análise de desenhos, a diferença de dimensões e de partido entre as duas.
Tudo começa pelo lote. O terreno no qual está a residência de Warchavchik é gigante, a residência fica solta em um espaço que é considerado um parque. Nos anos 70 quase virou um loteamento, então dá para imaginar a escala do terreno. Enquanto isso a residência de Artigas fica em um lote urbano, com recuo de jardim frontal considerável, mas que permite a visualização da casa por quem passa no passeio público. Na parte posterior do lote a residência fica a pouco mais de três metros da divisa, enquanto que na lateral a casa vai até a divisa, quase encostando no edifício vizinho.
E de alguma maneira, como é de se esperar, o tamanho dos lotes é espelhado nas residências. A casa Warchavchik é quase uma mansão, com uma organização espacial quase clássica, com hall, escada, dormitórios no pavimento superior, mais de uma sala no pavimento térreo, ampla área de cozinha e serviço. Enfim, me assustei com sua dimensão, que nas fotos parecia menor. Já a Casa de Artigas tem pouco mais de 200 m², contando com a garagem, e parece ainda menos, por ser compacta e integrada ao pátio, tendo apenas uma sala, um escritório, três dormitórios e as áreas de apoio e serviço, um programa enxuto para as residências deste padrão da época.
O que mais me marcou foi de fato o choque de escalas de projeto. A casa do Artigas representa muito do que hoje eu acho ideal em uma residência, a integração com o pátio, a escala de pé direito variável, mas sem perder o ar aconchegante, o fato de não possuir ambientes duplicados, a relação com pátio e deste com a rua, dormitórios enxutos, uso de cores, enfim, qualidades que não acabam mais. Apesar de pequena e de não ter muito o que fazer na casa, vale a visita. A dica é: saia de casa sem café e fique ali sentado no pátio por um tempo, curtindo o espaço e usufruindo do ambiente do restaurante e da casa como um todo.
Residência de Artigas

Vegetação densa no lote 
Lareira com armário embutido ajuda a delimitar o ambiente 
Planta Baixa da residência 
Acesso ao ateliê 
Ateliê suspenso do chão criando pático coberto 
Vista interna 
Pátio interno 
Acesso a Residência 
Detalhe do Ateliê
Residência de Warchavchik

Desenho original e residência 
Vista lateral, laje e ampliação foram feitas posteriormente 
Parta posterior da residência 
Acesso de serviço virou acesso principal 
Planta baixa original
Pavimento térreo
Planta baixa original
2° pavimento
Vista interna do living 
Acesso ao espaço 
Espaço interno
As duas residências fazem partes da história da arquitetura paulista e brasileira, merecem destaque e visitação, e representam épocas e pensamentos arquitetônicos diferentes. Vale a pena a visita.
Um comentário em “Escala de residências: Warchavchik e Artigas”